This website uses cookies to improve your experience. We\'ll assume you\'re ok with this, but you can opt-out if you wish. Read More
Architects BOSS.architecture
Photos 1: From the Hip. 2-5: Victor of Valencia
Location Denver, Colorado
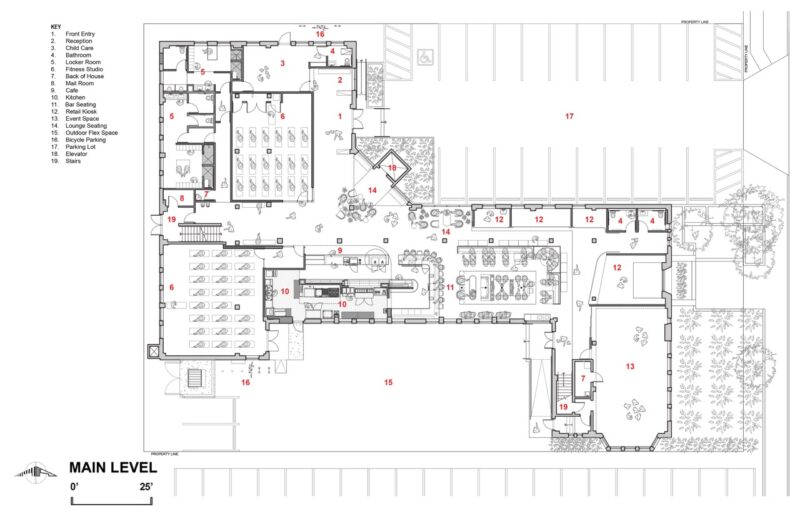
About nurture transforms a once-abandoned elementary school into a vibrant wellness marketplace dedicated to holistic self-care. Honoring the building’s history while layering soft textures and daylight, the space houses a café, fitness studios, childcare, retail, and suites for wellness practitioners. nurture offers both community connection and quiet refuge—supporting the full spectrum of human well-being with beauty, humility, and purpose.